Rénovation du refuge de la Croix du Bonhomme
Publié le 6 octobre 2025
Le refuge de la Croix du Bonhomme, situé à la croisée le du tour du Mont blanc et du tour du Beaufortain, va être rénové ! Il sera fermé au public de la mi-août 2026 jusqu'à l'été 2029.





Le refuge de la Croix du Bonhomme va être rénové. Si toutes les conditions financières, administratives et logistiques sont réunies, les travaux devraient démarrer à la fin de l'été 2026. Le refuge sera alors totalement fermé au public à partir de la mi-août 2026 jusqu'au printemps 2029, date de réouverture prévue.
Construit en 1924 par le Touring club France, le refuge n'était constitué alors que de la partie en pierre. Ce matériau, élément principal de sa construction, a été extrait du site. Caractéristique de l'attitude architecturale de l'époque, qui consistait à dominer l'espace, l'édifice s'élevait sur trois niveaux.
Le refuge fût bombardé pendant la seconde guerre mondiale et abandonné à l'état de ruine. En 1965, des bénévoles se lancèrent dans sa restauration. Après trois ans de travaux, le refuge rouvrit ses portes à l'été 1968. Le Club alpin français en reprit la gestion en 1983 et le racheta en 1987. En 1992, une extension en forme de L et une terrasse furent construites autour du refuge initial, afin d'augmenter sa capacité d'accueil et son confort. Ces agrandissements, inspirés par l'architecture traditionnelle locale, furent réalisés en bois et en pierre.





Un cadre exceptionnel et une fréquentation spécifique
Situé peu après le col de la Croix du Bonhomme lorsqu'on vient des Contamines, le refuge se trouve sur les itinéraires des tours du mont Blanc et du Beaufortain. Sa situation, près d'un col, lui confère une vue imprenable sur les massifs de la Vanoise et du Mont-Blanc. Sa fréquentation s'élève à plus de 8000 nuitées par an.
La requalification d'ensemble du site est un enjeu central du projet de rénovation. Le projet prévoit d'améliorer la qualité de l'intégration paysagère en harmonisant les volumes et l'architecture et en mettant en valeur le patrimoine historique (la tour centrale). Le projet architectural repose également sur une volonté collective de maintenir une emprise au sol constante (zéro artificialisation des sols).
Le projet prévoit de rétablir la capacité d'accueil d'avant Covid (108 couchages) qui avait été réduite ces dernières années à 90 couchages compte tenu des contraintes sanitaires et des difficultés d'exploitation de ce bâtiment devenu trop vétuste. Les espaces intérieurs, aujourd'hui vétustes, doivent être intégralement repensé : inconformités réglementaires (incendie, ERP), travail des gardiens compliqués, adaptation à une fréquentation croissante (notamment les randonneurs de passage en journée). « Le bâtiment est volumineux, mais ses espaces sont mal organisés et manquent de cohérence », note Jérémy Pouge, responsable des opérations de la FFCAM.
Enfin, le refuge n'est pas adapté à un gardiennage e exploitation sur la période hivernal et printanière pour le ski de randonnée, malgré son fort potentiel depuis les Contamines ou depuis le Beaufortain.
Le projet de rénovation prévoit donc la possibilité d'un gardiennage sur ces périodes : isolation thermique, chauffage adapté, gardiennage à capacité réduite, stockage du matériel ski de randonnée et un accès à l'eau en période enneigée.






Un bâtiment mieux intégré dans le paysage
Le projet de rénovation a été élaboré en concertation avec les acteurs locaux et validé par les services de l'État (Architectes des bâtiments de France et DREAL), en raison de sa situation à proximité du col de la Croix du Bonhomme, qui est un site classé. La proposition choisie est celle des architectes de l'atelier d'architecture D'ores et déjà et de Aurélien Bouvard. Elle consiste à unifier l'architecture générale du bâtiment tout en optimisant l'extension en L de 1992 qui entoure le bâtiment initial.
Les auvents des façades est et sud, formés par les portiques en bois qui soutiennent la charpente, sont fermés pour optimiser le volume du bâtiment. « Cette structure en bois, qui avait été très bien conçue et bien dimensionnée, est en très bon état de conservation », justifie Jérémy Pouge. Les façades sont isolées et recouvertes d'un bardage inox patiné, s'intégrant mieux dans le paysage. Les toitures sont également isolées et redessinées, afin de ne constituer qu'une ligne de faitage et d'offrir une architecture plus unifiée du bâtiment. Elles seront également en inox patiné. « Ce matériau très pérenne apporte plus de discrétion d'intégration sur ce site classé. Il permet ainsi de minimiser l'extension. » La tour historique, placée au centre du bâtiment, garde ses parements en pierre, afin d'être mise en valeur. Ses bardages abimés seront repris.






Dans la salle commune, une vue sur les massifs valorisée
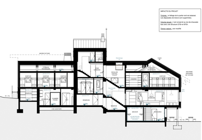
Les volumes intérieurs seront entièrement réaménagés. La salle commune orientée sud sera agrandie. Ses façades est, sud et ouest arboreront des baies vitrées pour ouvrir la vue à 180° sur les massifs et permettre au soleil de chauffer cet espace en hiver. Dans l'aile nord, la cuisine, les locaux techniques et les réserves sont réagencés. L'étage se découpe en 16 dortoirs de 4 à 12 places. Un dernier dortoir de 12 places, pour les groupes ou les solaires, est installé au rez-de-chaussée bas. Les sanitaires comptent en majorité des toilettes sèches : deux sont installés à l'extérieur pour le public de passage et trois à l'étage, dans l'espace qui correspond à l'ancien refuge en pierre. « La coque historique du refuge historique va permettre de contenir les odeurs, qui peuvent émaner des toilettes sèches.» Deux toilettes humides complètent l'ensemble sanitaire. Trois douches et deux cabines lavabo fermées sont mises à disposition du public : indispensables pour accueillir un public très majoritairement itinérant, l'ambition de sobriété en eau a toutefois été un pré-requis incontournable du projet. « Nous avons pris le parti de ne pas mettre de douche à disposition du public, car les étapes précédente et suivante du tour du Mont-Blanc en disposent. » Ces choix permettent de réduire les consommations en eau sur une site isolé particulièrement contraint en disponibilité de la ressource eau.
L'accueil du public s'effectue par la façade ouest. L'entrée refuge se situe au rez-de-chaussée bas, par un vestiaire.
Les espaces gardiens, situés dans la partie centrale du bâtiment (la tour) seront également été réagencés. La création d'une salle de repos et d'espaces de couchage fermés apportera plus d'intimité.
Sur le plan énergétique, un chauffage à bois chauffera la pièce commune. Des panneaux solaires photovoltaïques et thermiques, installés sur le toit et la façade sud du bâtiment, permettront d'assurer les besoins en électricité, eau chaude et chauffage. « Un tryptique énergétique éprouvé, que nous avons testé sur de nombreux bâtiments et que nous maîtrisons. » Un poêle à pellets permettra au gardien d'ajuster la chaleur du bâtiment.
La question de l'alimentation en eau a été anticipée, avec la reprise des deux captages déjà en place, pérennisant l'approvisionnement en eau.
Réouverture du refuge prévue pour 2029
Le permis de construire a été déposé. Le coût total (études, réalisation des travaux et héliportage des matériaux) est estimé à plus de 4 millions d'euros.
Les travaux devraient démarrer à la fin de l'été 2026. Si ce planning se confirme, le bâtiment actuel n'accueillera plus de public à partir de mi-août 2026. La réouverture du nouveau bâtiment est prévue pour l'année 2029.