Rénovation du refuge des Merveilles
Le refuge des Merveilles, situé dans le parc national du Mercantour, à l'entrée de la vallée des Merveilles, va être rénové.
Le refuge des Merveilles, situé dans le parc du Mercantour, dans les Alpes-Maritimes, va être rénové. Si toutes les conditions sont réunies (autorisations administratives, disponibilité des entreprises, obtention des subventions), les travaux pourront démarrer à la fin de l'été 2026. Le refuge devrait alors être totalement fermé au public à partir de début septembre 2026 jusqu'au printemps 2029, date de réouverture prévue.
Ce refuge, réputé pour sa proximité avec le site archéologique classé de la vallée des Merveilles, qui lui a donné son nom, a été édifié au bord de son lac principal en 1913. Le premier usage de cette petite bâtisse de pierre était d'héberger les ouvriers travaillant sur le barrage du lac. Pendant la Seconde Guerre mondiale, il servit de caserne aux soldats italiens. Dans le cadre des accords frontaliers suite à la défaite du bloc germano-italien en 1945, le refuge fut, en 1949, cédé au Club alpin français.
Deux agrandissements ont été ajoutés, en 1970 puis en 2000, dans le prolongement du bâtiment d'origine.
Le refuge est accessible à partir de la Gordolasque, à l'ouest du parc national du Mercantour, ou du vallon de la Minière, au-dessus de Saint-Dalmas-de-Tende. Sa fréquentation, composée essentiellement de randonneurs venus découvrir le site sur un ou plusieurs jours, s'élève à 8000 nuitées par an. Le refuge n'est aujourd'hui plus aux normes. Son organisation et ses équipements ne sont plus adaptés à l'exploitation du bâtiment et à sa fréquentation. Enfin, son architecture disgracieuse n'est pas à la hauteur du site classé qu'il dessert.
Découvertes à la fin du XIXe siècle, les gravures rupestres essaimées sur les roches de plusieurs vallons ramifiés autour du mont Bégo (2 872 m) et du mont des Merveilles (2 720 m) datent de la fin du Néolithique à l'Age de Bronze (-3000 à -1000 -1000 av. JC). Près de 100 000 gravures ont été recensées, faisant de ce site le premier ensemble rupestre du territoire français. Ces gravures, nombreuses et particulièrement bien conservées, concèdent au site une renommée internationale. La zone réglementée qui englobe la vallée des Merveilles et de la Fontanalba, protège ces vestiges archéologiques en interdisant la circulation en dehors des itinéraires prévus. Le refuge se trouve à la limite de cette zone réglementée.

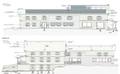
Une homogénéisation du bâtiment pour une meilleure intégration paysagère
La phase de concertation entre les acteurs et les institutions locales a permis d'aboutir à un programme fondé sur la requalification du site, le maintien de la capacité existante, le maintien d'une emprise au sol constante.« La première contrainte était d'augmenter la fonctionnalité tout en restant à volumétrie équivalente, afin de respecter les prescriptions liées au site classé », définit Baptiste André, conducteur d'opérations à la FFCAM, « Pour cela, il faut réorganiser et optimiser les espaces intérieurs. La seconde contrainte était de valoriser la partie historique du bâtiment tout en unifiant l'ensemble. »
Dans le cadre du concours de maîtrise d'œuvre, le projet de l'architecte Nicola Spinetto remplissait le mieux ces conditions.
Il propose une préservation du bâti historique, tout en apportant une homogénéisation de l'ensemble du bâtiment. Les façades en pierre de la partie ancienne seront toujours apparentes, les parties récentes seront habillées d'un bardage en bois. Cette unification architecturale du bâtiment permettra une meilleure intégration paysagère. Dans ce cadre, les toitures, qui étaient discontinues, seront unifiées.
Cette architecture entièrement revue a été travaillée en concertation avec les Architectes des bâtiments de France (ABF) et le parc national du Mercantour.
Un refuge plus fonctionnel
L'aile ouest, tournée vers le lac et la vallée des Merveilles, rassemblera les espaces de vie communs. La grande salle commune donnant sur une terrasse au nord-ouest du bâtiment s'ouvrira sur le paysage. Ses larges baies vitrées valoriseront davantage les vues sur le lac et le sommet du Bégo. La cuisine, située au-dessus des espaces gardiens, sera réorganisée pour être plus fonctionnelle, elle disposera de réserves attenantes. L'entrée principale protégée par un porche restera à l'emplacement actuel. Elle donnera accès à l'accueil et au vestiaire-séchoir qui servira également de local hors-sac. L'espace nuit se trouvera à l'étage. Il se déclinera en sept dortoirs de différentes capacités, de 6 à 22 places, pour répondre aux besoins des différents publics. « Cette disposition nous permet de gagner de l'espace, de limiter les circulations et de conserver un esprit refuge », justifiera Baptiste André. L'étage comprendra aussi les sanitaires : des toilettes, des lavabos, dont trois cabine-lavabos. « Nous avons fait le choix de supprimer les douches et de les remplacer par des cabines fermées pour réduire les besoins en eau et en énergie et pour diminuer les rejets d'eaux grises à traiter. De plus, nous sommes convaincus qu'une toilette en cabine fermée est suffisante lorsqu'on passe une seule nuit en refuge. Les quelques randonneurs en itinérance sur plusieurs jours ont la possibilité de prendre des douches dans les étapes précédentes et suivantes (refuge de Nice notamment, ndlr). ». Des toilettes sèches seront également installées en rez-de-jardin pour le public hébergé et pour le public de passage.
Des panneaux photovoltaïques et thermiques fournissent l'électricité et l'eau chaude pour la cuisine et le chauffage. Le refuge, qui est destiné à être gardé l'hiver pour la pratique des activités de neige, sera aussi équipé d'une chaudière à bois.
Images ci-dessous de Nicola Spinetto Architecture
Le budget prévisionnel de l'opération (études, réalisation des travaux et héliportage des matériaux) s'élève à 3,5 millions d'euros.
Les travaux devraient démarrer au début de l'été 2027. Si ce planning se confirme, le bâtiment actuel n'accueillera plus de public à partir de la fin du printemps 2027. La réouverture du nouveau bâtiment est prévue pour l'année 2029.









Alpinisme
Escalade
Canyonisme
Escalade sur glace
Les sports de neige
Slackline & Highline
Spéléologie
Sports aériens
Via ferrata
Prévention et sécurité